Neo

Neo trae ispirazione dallo stile Bauhaus. Allora Walter Gropius e colleghi hanno rivoluzionato l’architettura: design semplice e bello per tutti. Molta luce ed il collegamento di interno ed esterno – temi, che anche oggi dopo 100 anni sono più attuali che mai.

La moderna architettura della casa con un design puristico, linee e forme chiare è la fonte di ispirazione per la finestra complanare. Il design riduce la finestra all’essenziale e quindi alla perfetta integrazione nella superficie della casa. Lo spazio molto stretto tra telaio ed anta è un’ulteriore eccellente peculiarità del design. Inoltre la variante complanare presenta un’estetica elegante e squadrata ed un alto livello di fruibilità. In più questa soluzione lascia meno spazio accessibile allo sporco.

Neo: scheda tecnica

I PLUS

Semplicità / Equilibrio / Prestazioni

I MODELLI

Eracle / Neo / Zeus

VARIANTI

• Neo, con la sua nuova “qube line”.
• Neo Minimal, con ante e nodo centrale ridotto per un design minimal.

PRESTAZIONI

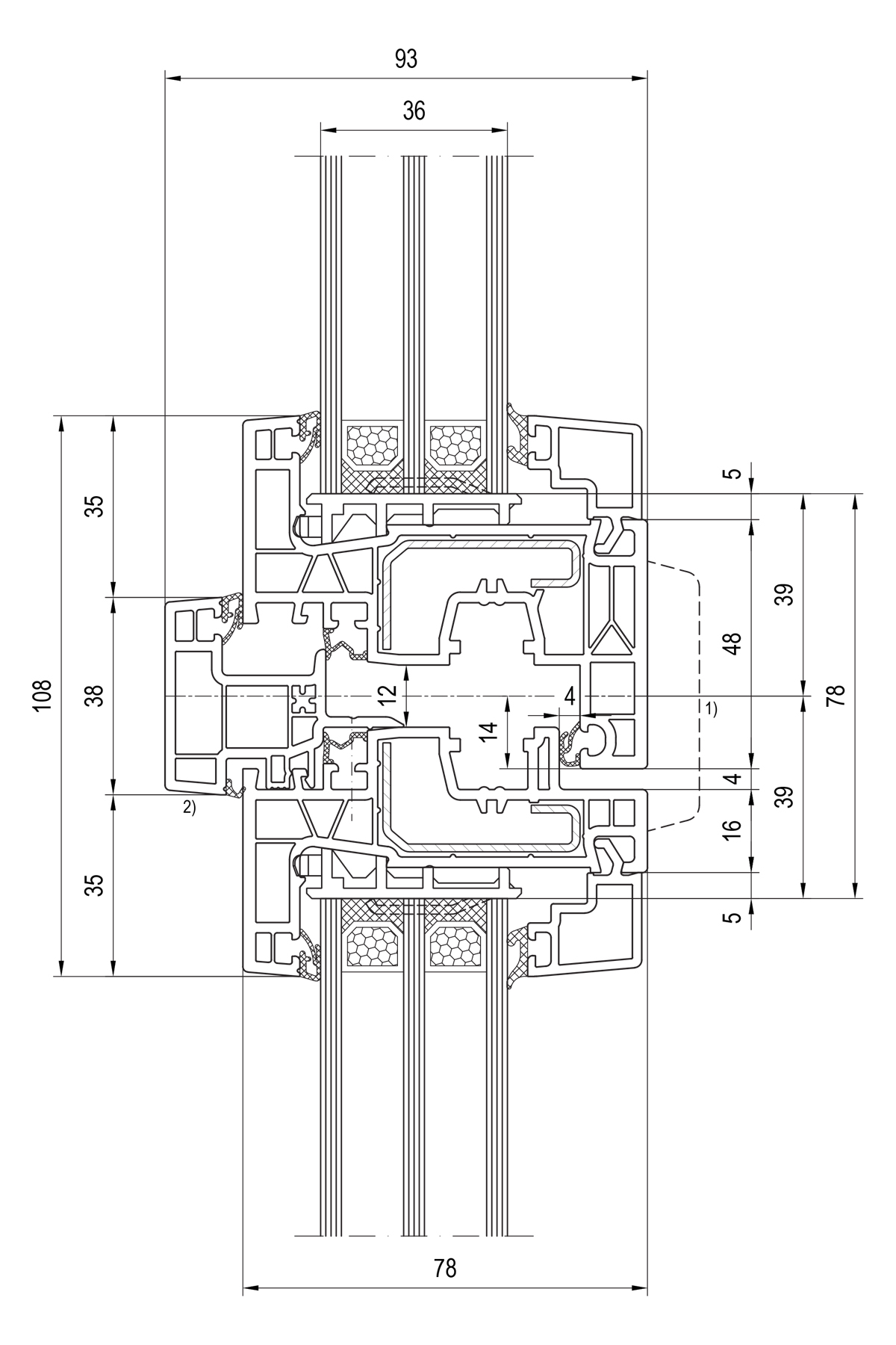
• Uf=1,00W/m²K (1)
• Uw=0,73W/m²K miglior variante possibile (2)
• woodec e aludec come superficie standard
• powerdur inside
• bonding inside
• fino alla classe RC2 di antieffrazione
• variante a gradino
• opzione foam inside

(1) con vetro standard a tre lastre Ug = 0,7 e Psi = 0,040W/mK
(2) con vetro a tre lastre con Ug = 0,5 e Psi = 0,030W/mK

Neo in sezione

Neo Minimal in sezione

Con ante e nodo centrale ridotto per un design minimal.